В понедельник, 12 июля, ростовские СМИ со ссылкой на представителей городской власти объявили о предстоящем конкурсе на строительство платной подземной парковки на Соборной площади.
Платная парковка — один из долгоиграющих городских проектов. Идея строительства паркинга была официально оглашена несколько лет назад, а в феврале 2013-го даже был объявлен конкурс, который предполагал заключение концессионного соглашения между мэрией и инвестором.
«Соглашение будет действовать в течение 25 лет, из которых на проектирование и строительство отведено 2 года и 1 месяц. А остальное время концессионер (инвестор) должен будет выполнять ряд обязательств. Во-первых, обеспечить страхование риска утраты или повреждения парковки; во-вторых, поддерживать её в исправном состоянии и проводить необходимый ремонт; в-третьих, инвестор должен будет разработать правила эксплуатации и технического обслуживания; в-четвёртых, выплачивать администрации города концессионную плату — 10% от сверхдохода». Согласно концессионному соглашению, парковка под Соборной площадью на 300 машиномест будет иметь несколько подземных этажей. Ориентировочная стоимость реализации проекта — 180 миллионов рублей», — рассказывал тогда donnews.ru представитель администрации города.
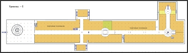
Конкурс объявили, и даже нашлись желающие строить — некая фирма «Восток» и компания «Праймери Дон», входящая в группу «Агроком» Ивана Саввиди. В следующий круг соревнований «Восток» не прошёл. А проект «Праймери Дон» предполагал помимо собственно паркинга на 381 место (по условиям конкурса, минимальное количество мест будущего паркинга — 300) появление на Соборной площади (точнее, под Соборной) новых торговых мест. В инете появились эскизы, которые специально разработала компания «Атлас торговли» — три подземных этажа, галереи и так далее.



Три уровня парковки. Фото atlas-trade.ru
Однако ж амбициозный проект зарубили члены комиссии. Официальную версию отказа мэрии огласил директор департамента автодорог Арам Егиазарян:
— Предложенный «Праймери Дон» проект не соответствует условиям конкурса. Размещение дополнительных торговых мест на Соборной не предусмотрено, там и так очень насыщенная торговля. Кроме того, дополнительные торговые места «оттянули» бы и места с построенной парковки.
Неофициальная версия— непростые взаимоотношения между властью и бизнесменом. Но с тех пор утекло много воды, и стороны, надо полагать, успели оговорить условия дружбы, которая сейчас, как и при прежнем рукодстве, в самом разгаре. Поэтому не исключено, что строить парковку возьмётся одна из структур Ивана Игнатьевича.
Сделать теперь это будет проще, поскольку позиция городской власти изменилась на противоположную: теперь можно строить не только парковку, но и сооружения, которые позволят «отбить» вложенные средства.
— Если предложить инвесторам построить исключительно парковку, то вряд ли кто согласится. Кто же захочет закопать в землю миллиард и не знать, как вложенные средства отбить? Мы должны дать людям заработать, — сказал журналистам глава администрации Сергей Горбань.
Это было сказано в февраля текущего года. Но тема строительства парковки всплыла лишь спустя 6 месяцев.
Возможно, эта попытка найти инвестора будет успешней, чем две предыдущие, и если решение будет принято оперативно, а строители отработают с опереженем графика, то, может быть, к ЧМ-2018 на Соборной действительно появится парковка.
Поделиться:
4,8 м/c
58%
750 мм рт. ст.

